
广东HEA欧标H型钢 HEA550 规格型号
![]() |
-
上海铸然供应链(集团)有限公司-外标型钢一站式采购平台
规格名称:HEA欧标H型钢
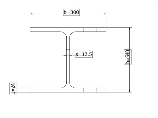
规格型号:HEA550
规格尺寸:540*300*12.5*24
腰宽:h=540
腿宽:b=300
腰厚:s=12.5
腿厚:t=24
米重:166KG/m
公差执行标准:EN10025-2:2004 EN10034:1993
可提供材质:S235JR/S235J0/S275JR/S275J0/S355JR/S355J0/S355J2/S355NL/S355ML......
主营:美标型钢、英标型钢、欧标型钢、日标型钢、澳标型钢、耐低温型钢、轻钢结构、重钢结构、钢结构工程。
HEA欧标H型钢规格型号米重表
材质:S235/S275/S355/S460
公差执行标准:EN10034:1997 EN10163-3:2004
名称 规格 型号 米重
欧标H型钢 HEA100 型号96x100x5x8 米重16.7KG
欧标H型钢 HEA120 型号114x120x5x8 米重19.9KG
欧标H型钢 HEA140 型号133x140x5.5x8.5 米重24.7KG
欧标H型钢 HEA160 型号152x160x6x9 米重30.4KG
欧标H型钢 HEA180 型号171x180x6x9.5 米重35.5KG
欧标H型钢 HEA200 型号190x200x6.5x10 米重42.3KG
欧标H型钢 HEA220 型号210x220x7x11 米重50.5KG
欧标H型钢 HEA240 型号230x240x7.5x12 米重60.3KG
欧标H型钢 HEA260 型号250x260x7.5x12.5 米重68.2KG
欧标H型钢 HEA280 型号270x280x8x13 米重76.4KG
欧标H型钢 HEA300 型号290x300x8.5x14 米重88.3KG
欧标H型钢 HEA320 型号310x300x9x15.5 米重97.7KG
欧标H型钢 HEA340 型号330x300x9.5x16.5 米重105KG
欧标H型钢 HEA360 型号350x300x10x17.5 米重112KG
欧标H型钢 HEA400 型号390x300x11x19 米重125KG
欧标H型钢 HEA450 型号440x300x11.5x21 米重140KG
欧标H型钢 HEA500 型号490x300x12x23 米重155KG
欧标H型钢 HEA550 型号540x300x12.5x24 米重166KG
欧标H型钢 HEA600 型号590x300x13x25 米重178KG
欧标H型钢 HEA650 型号640x300x13.5x26 米重190KG
欧标H型钢 HEA700 型号690x300x14.5x27 米重204KG
欧标H型钢 HEA800 型号790x300x15x28 米重224KG
欧标H型钢 HEA900 型号890*300*16*30 米重252KG
欧标H型钢 HEA1000 型号990*300*16*21 米重 272KG
HEA欧标H型钢是一种新型经济建筑用钢。HEA欧标标H型钢截面形状经济合理,力学性能好,轧制时截面上各点延伸较均匀、内应力小,与普通H字钢比较,具有截面模数大、重量轻、节省金属的优点,可使建筑结构减轻30-40%;又因其腿内外侧平行,腿端是直角,拼装组合成构件,可节约焊接、铆接工作量达25%。常用于要求承截能力大,截面稳定性好的大型建筑(如厂房、高层建筑等),以及桥梁、船舶、起重运输机械、设备基础、支架、基础桩等。
地址:山东省临沂市河东区206国道西
地址:广东佛山乐从钢铁世界大道商务楼A座511室
地址:上海市宝山区江杨南路2500弄智慧大厦三楼303室 - 上海铸然供应链(集团)有限公司
主营业务:美标型钢、英标型钢、欧标型钢、日标型钢、澳标型钢、轻钢结构、重钢结构、桥梁结构、耐低温型钢
联 系 人 :徐文忠
联系方式:0757-28339760 18321850356 → 联系我时请告知是在建材采购网看到的
详情介绍更新时间:2022/3/31 10:06:11
相关产品
- 美标H型钢S355JO S355JR
价格:电询
日标钢材、英标钢材、欧标钢材、美标钢材、球扁钢、L型钢、电梯轨道钢、各种进口钢材现货专业批发日标角钢,日..
- 海南厂家直供H型钢材热轧镀锌h型钢 热轧工字钢高频焊接h型钢量大从优
价格:4100元/吨 品牌:唐钢
H型钢是一种新型经济建筑用钢。H型钢截面形状经济合理,力学性能好,轧制时截面上各点延伸较均匀、内应力小,..
- 厂家直供H型钢材热轧镀锌h型钢 热轧工字钢高频焊接h型钢量大从优
价格:4300元/吨 品牌:唐钢
H型钢,是一种截面面积分配更加优化、强重比更加合理的经济断面高效型材,因其断面与英文字母“H”相同而得名..
- 钢材批发海南工字钢镀锌工字钢钢结构电梯工字钢 建筑H型钢建筑
价格:4500元/吨 品牌:唐钢
H型钢,是一种截面面积分配更加优化、强重比更加合理的经济断面高效型材,因其断面与英文字母“H”相同而得名..
- 泰安H型钢/钢板/开平板/中板厂家
价格:电询 品牌:莱钢
泰安市建成商贸有限公司,常年代理各大钢厂H型钢。与莱钢、日钢、津西、天柱、安泰、鑫达、鞍山宝得等建立了良..
- 热轧H型钢天津现货 建筑钢结构H型钢 镀锌H型钢 焊接H型钢Q235B
价格:3900元/吨 品牌:津西
H型钢是一种截面面积分配更加优化、强重比更加合理的经济断面高效型材,因其断面与英文字母“H”相同而得..
- 天津 批发热轧H型钢Q235B工字钢国标槽钢 普钢锰钢Q355B工角槽现货
价格:3900元/吨 品牌:津西
H型钢是一种截面面积分配更加优化、强重比更加合理的经济断面高效型材,因其断面与英文字母“H”相同而得名。..
- H型钢天津现货 Q235B镀锌H型钢 热轧H型钢材 建筑幕墙用H型钢梁
价格:3700元/吨 品牌:唐钢
H型钢是一种截面面积分配更加优化、强重比更加合理的经济断面高效型材,因其断面与英文字母“H”相同而得..